Trilocale in vendita

Roma, Via della palmarola - Palmarola
€ 168.000
3 locali 3 locali
60 Mq 60 Mq
1 bagno 1 bagno

Trilocale in vendita

Roma, Via della palmarola - Palmarola

Descrizione annuncio

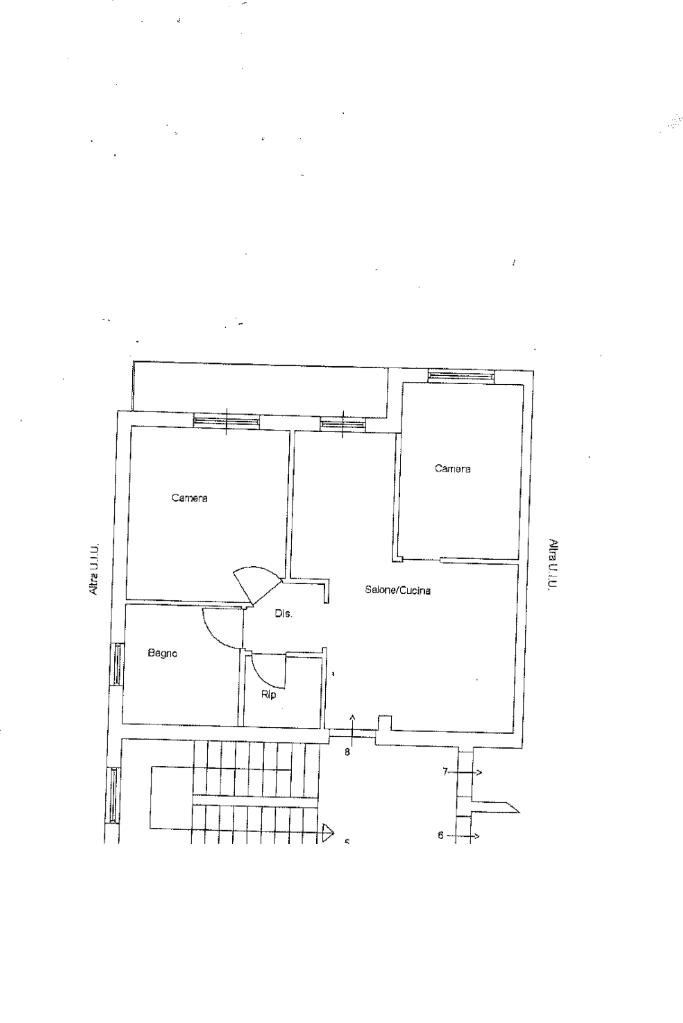
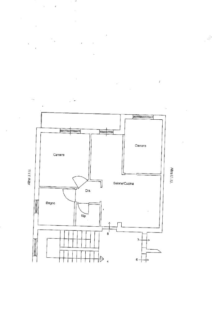
Palamrola - Via della Palmarola

Trilocale ristrutturato nel 2018 di 60 mq - Secondo piano (senza ascensore).

In contesto tranquillo e ben servito, proponiamo in vendita un trilocale di 60 mq sito al secondo piano ( senza ascensore), ristrutturato nel 2018.

L'appartamento è composto da: Soggiorno con cucina a vista, camera matrimoniale, camera singola, bagno finestrato con comoda doccia e rispostiglio attrezzato come locale lavanderia. Completa la proprietà un balcone accessibile sia dalla cucina che dalla cameretta, ideale per momenti di relax.

Impianti a norma con certificazione, grate anti sfondamento, infissi in legno doppio vetro e zanzariere.

Esposizione Nord - Ovest

Soluzione perfetta per giovani coppie, piccoli nuclei famigliari o come uso investimento.

Per ulteriori informazioni o per fissare una visita, contattaci su WhatsApp al 334-32 56 978 o al numero 06-30994312.

Mostra tutto

Nelle vicinanze

Trasporto pubblico Trasporto pubblico
Roma San Filippo Neri
Roma San Filippo Neri
2,6 Km
Ottavia
Ottavia
2,9 Km
Palmarola/Fosso S. Spirito
Palmarola/Fosso S. Spirito
20 m
Casal del Marmo/Palmarola
Casal del Marmo/Palmarola
60 m
Ricariche auto elettriche Ricariche auto elettriche
EnelX EVA+ ADS Selva Candida Esterna
1,8 Km
Scuole Scuole
Pontificia Facoltà di Scienze dell'Educazione
1,5 Km
Scuole
2,1 Km
Liceo Scientifico Statale "Louis Pasteur"
2,1 Km
Liceo Ginnasio Statale Cornelio Tacito
2,4 Km
Istituto d'Istruzione Superiore Cartesio
2,4 Km
Farmacia Farmacia
Parafarmacia Conad
1,1 Km
Parafarmacia doc*Torresina
1,8 Km
Farmacia Andersen
2,3 Km
Farmacia
2,9 Km
Ospedali Ospedali
Presidio Ospedaliero San Filippo Neri
2,4 Km
Ospedali
2,9 Km
Supermercati Supermercati
Conad
1,1 Km
EMI
1,2 Km
Ipercarni
1,3 Km
Crai
1,3 Km
Decò
2,3 Km
Negozi Negozi
Box 13
2,8 Km
Tiziana Pieroni Fashion
2,8 Km
da Stefania
2,8 Km
Panificio Kumera
2,8 Km
CRAI
2,9 Km
Bar Bar
Bar
2,3 Km
Box 26
2,8 Km
dello Studente
2,8 Km
l'amico
2,9 Km
Bar Thouar
2,9 Km
Ristoranti Ristoranti
Ristoranti
740 m
La Rocca Già
1,7 Km
Ristorante Selva Nera
1,8 Km
Gusto e musica
2,3 Km
La Villetta
2,5 Km
Mostra tutto

Caratteristiche

Rif.:
61056847
Piano:
2 di 3 (Piano medio)
Balconi:
1
Camere da letto:
2
Arredamento:
Completo
Condizionamento:
Autonomo
Mostra tutto
Prezzo Prezzo
€ 168.000
Rata mutuo Rata mutuo
€ 792 / mese
Spese annue Spese annue
€ 500
Proponi il tuo prezzoProponi il tuo prezzo

Classe Energetica

E
E
E
E
E
E
E
E
E
EP globale non rinnovabile:
184.71 kW h/m² anno
EP globale rinnovabile:
184.71 kW h/m² anno
EP invernale del fabbricato:
EP estiva del fabbricato:
Anno di costruzione:
1970
Riscaldamento:
Autonomo
Tipo impianto:
A radiatori
Tipo alimentazione:
Metano

Ti interessa visionare l'immobile?

Fissa un appuntamento  Fissa un appuntamento

Richiedi informazioni

Clicca su Leggi per aprire l'informativa
* Questi campi sono obbligatori

Calcola il tuo mutuo

Semplice e senza impegno
Anticipo

( % )
Mutuo

( % )

pochi semplici passi

inserisci i tuoi dati
Questionario completato
Grazie per aver richiesto un appuntamento senza impegno con un nostro Consulente del Credito e Assicurativo.

Hai inserito correttamente tutti i dati necessari e a breve riceverai una e-mail con un link da convalidare per inviare i tuoi dati.
Affiliato
Casal Del Marmo 2013 Srlcr
Via Di Casal Del Marmo, 272 00135 Roma (RM)

Il nostro staff


  • Emanuela Malika Sara Pinna
    Affiliata

  • Valentina Del Bono
    Coordinatrice

  • Daniel Fondriest
    Collaboratore

  • Adriano Zavojanni
    Collaboratore
Via Di Casal Del Marmo, 272 00135 Roma (RM)
Zona: Casal del Marmo - Palmarola - Ottavia
Mostra su mappa
Orari: 9:00 - 13:00 / 15:30 - 20:00; sabato 9:00 - 13:00 / 15:30 - 19:00.
Affiliato
Casal Del Marmo 2013 Srlcr
Via Di Casal Del Marmo, 272 00135 Roma (RM)

2026 Tecnocasa Franchising S.p.A. - P. IVA 08365160152 - Via Monte Bianco 60/A 20089 Rozzano (MI). Ogni agenzia ha un proprio titolare ed è autonoma. Privacy policy | Policy utilizzo | Cookie policy